Dozidava in rekonstrukcija Zdravstvenega doma
Dozidava in rekonstrukcija Zdravstvenega doma
Načrovani posegi:
1. ureditev začasnih prostorov CNMP v objektu državnih rezerv,
2. sanacija notranje fekalne kanalizacije kleti v trakta A,
3. ureditev prostorov Centra za preprečevanje in zdravljenje odvisnih od prepovedanih drog (v nadaljevanju CPZOPD Kočevje) v prostorih obstoječe ordinacije ter prestavljene TP,
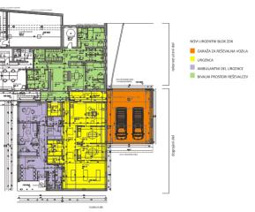
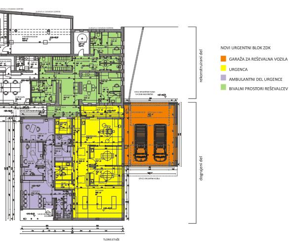
4. rekonstrukcija kletnega dela trakta A za ureditev bivalnih prostorov za reševalce v okviru CNMP,
4.a. investicijsko vzdrževalna dela kleti trakta A v prostorih nove patronažne službe,
5. gradnja urgentnega bloka na JV strani trakta A z navezavo z kletno etažo v traktu A. V obsegu prizidka se zgradi osnovni korpus s prostori urgentnega bloka, garaža za reševalna vozila - garažo ob V fasadi s strojnico v nadstropju,
6. sanacijo S kletne stene trakta A– izvedba hidroizolacije, delna toplotna izolacija, ureditev drenaže, ureditev fekalne kanalizacije izven prostorov kleti trakta A, ureditev meteorne kanalizacije. Izvedbo fasade na traktu A s toplotno izolacijo V in Z zatrepne stene,
7. gradnja povezovalnega nadstreška ob J fasadi kletne etaže trakta A, ki se nadaljuje v nadstrešek nad parkiriščem za vozila patronažne službe,
8. gradnja novega nadstreška ob vhodu v trakt A, ureditev parkirišča na S strani trakta A, ureditev meteorne kanalizacije ter zunanje ureditve. Ob stopnišču je dvižna naprava za invalidska vozičke,
9. ureditev prostorov ZDK v traktih A in B kjer se izvajajo investicijsko vzdrževalna dela,
10. ureditev zunanjih kanalizacijskih razvodov ter zunanjih površin s parkirišči.